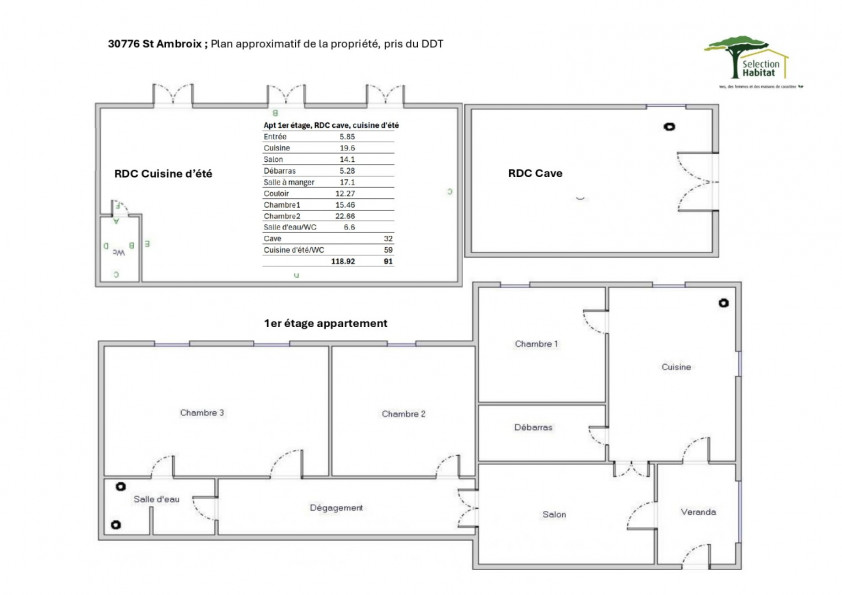
| NIVEAU | PIÈCE | SURFACE |
Appartement à rénover 4 pièce(s), 113m2 habitables, SAINT AMBROIX (30500) 105 000 €
- Ref 12031399386
- Ref 30776
- Type Appartement à rénover
- Ville SAINT AMBROIX
- Pièces 4
- Chambres 3
- Surface 113 m²
- Terrain 118 m²
- Prix :
105 000 € *
Situé au 1er étage d’un immeuble de caractère datant des années 1850, cet appartement offre de beaux volumes et conserve tout le charme de l’ancien : plafonds voûtés, sols anciens colorés d’époque et atmosphère authentique.
L’appartement se compose actuellement de deux chambres, d’un salon, d’une salle à manger pouvant également faire office de troisième chambre, ainsi que d’une cuisine indépendante.
En rez-de-chaussée, le bien dispose d’une cave privative, où se trouve la chaudière au gaz assurant le chauffage. Une seconde pièce dite “cuisine d’été”, aujourd’hui à rénover, offre un beau potentiel d’aménagement pour un espace complémentaire selon les besoins.
Un véritable atout rare accompagne cet appartement : un terrain situé devant l’immeuble, agrémenté d’oliviers, apportant un extérieur appréciable à l’ensemble. L’accès à l’appartement se fait par un escalier en pierre, fidèle au caractère du lieu.
Avec une classe énergétique C, ce bien se distingue favorablement parmi les logements anciens et garantit un bon confort au quotidien.
Idéalement situé à quelques minutes à pied des commerces, écoles et du marché hebdomadaire, cet appartement conviendra aussi bien à une résidence principale, une résidence secondaire ou un investissement locatif.
Une opportunité rare d’acquérir un appartement spacieux, avec terrain et dépendances, au cœur de la vallée de la Cèze, entre Cévennes et Ardèche.
Les informations sur les risques auxquels ce bien est exposé sont disponibles sur le site Géorisques : www.georisques.gouv.fr » Surface CARREZ : 118.99 m² Surface CARREZ : 178 m²
Bien soumis au statut juridique de la copropriété. Nb de lot :3.
* Honoraires charge vendeur.
Notre agence
Découvrez les écoles, hopitaux, commerces ... à proximité
- Bien
- 44.2618806
- 4.1990375
- /images/ggmap-marker.png
- click
-
Appartement à rénoverSAINT AMBROIX - 113 m²

























