| NIVEAU | PIÈCE | SURFACE |
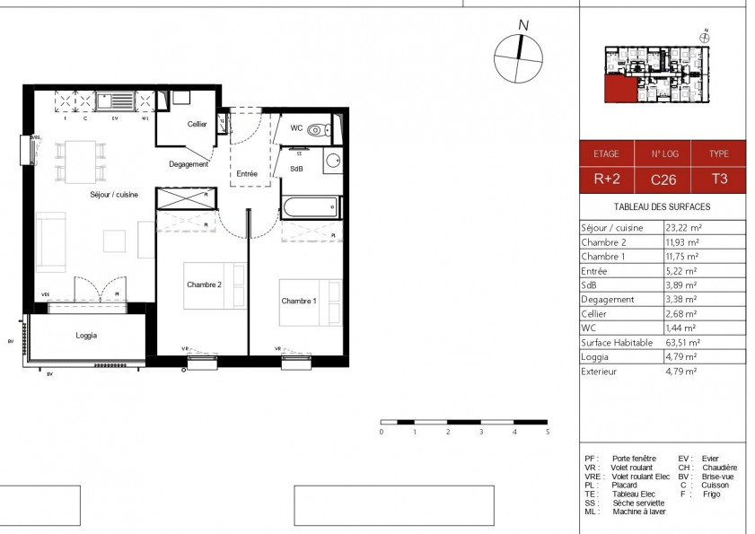
Appartement 3 pièce(s), 63m2 habitables, PRADINES (46090) 183 812.09 €
- Ref 12033393418
- Ref 30135
- Type Appartement
- Ville PRADINES
- Pièces 3
- Chambres 2
- Surface 63 m²
- Terrain NC
- Prix :
183 812.09 € *
À Vendre – Superbe T3 Neuf de 62,63 m² – Livraison Mai 2026 – Pradines (Route du Gymnase)
Découvrez ce bel appartement T3 de 62,63 m², situé au 1er étage d’une résidence neuve actuellement en construction à Pradines, dans un environnement calme et pratique. Un appartement témoin est disponible, vous permettant de programmer aisément une visite et de vous projeter dans votre futur logement !
Un intérieur lumineux et fonctionnel:
L’appartement se compose de :
Une entrée avec placard équipé
Un séjour-cuisine lumineux grâce à sa grande baie vitrée donnant accès à une loggia
Deux chambres confortables
Un dégagement offrant des possibilités de rangement supplémentaires
Un cellier, idéal pour optimiser l’espace
Une salle de bain moderne
Un WC séparé
Prestations de qualité:
Chauffage individuel au gaz
Sols : stratifié dans les chambres, carrelage en grès émaillé dans les autres pièces
Murs : peinture lisse blanche velours ou satinée
Salle de bain équipée : meuble vasque, miroir, point lumineux, receveur de douche ou baignoire en acier émaillé blanc, faïence colorée
Cuisine aménagée
Pré-équipement fibre optique
Détecteur de fumée
Attentes pour lave-linge / lave-vaisselle
Extérieurs & Résidence:
Loggia en béton armé avec finition lames bois ou dalles sur plots
Prise extérieure étanche + point lumineux
Espaces verts communs paysagers
Fenêtres PVC – volets roulants électriques sur la baie du séjour
Porte palière sécurisée (serrure 3 points)
Une place de parking attitrée incluse avec l’appartement
Également disponible en LOCATION-ACCESSION !
Profitez d’un parcours d’achat facilité et particulièrement avantageux (sous conditions d’éligibilité) :
TVA réduite
Exonération de taxe foncière pendant 15 ans
Pas de cumul loyer / remboursement d’emprunt
Frais de notaire réduits
Livraison prévue : Mai 2026
Ne manquez pas cette opportunité unique dans un secteur recherché !
Contactez-nous dès aujourd’hui pour visiter l’appartement témoin et réserver votre futur logement. Surface CARREZ : 63.43 m²
* Honoraires : 8.28% TTC inclus charge acquéreur (169 750 € hors honoraires).
Notre agence
Découvrez les écoles, hopitaux, commerces ... à proximité
- Bien
- 44.468313
- 1.411573
- /images/ggmap-marker.png
- click
-
AppartementPRADINES - 63 m²








